Heathkit ET-3400A 6800


Most recent revision Apr 26 2024. Copyright 2024 Herb Johnson.

Introduction

My colleague Lee Hart, bought a Heathkit ET3400 in Feb 2024. Reminded me, I have one as well. Here's some preliminary notes. Check my 6800 Web page for Web links to other 6800, 6809 content I have.. - Herb Johnson

Herb's ET-3400A

[ET3400A]

I have an ET3400A, which has a clock crystal and a 6802 or 6808 but is mostly the same as the ET3400 with 6800 and clock circuit. Mine worked a few years ago, and I observed in Feb 2024) it worked, or at least booted the CPU UP display.

Specs: ET3400A s/n 03-44642
boards 85-2010, 85-2712
IC date codes 1981 various weeks
ROM 144-76 Motorola, AMD 6808P?
DC voltages: -12.4, +12.2, +4.9 w/digital voltmeter

Back of the 3400a
inside of the 3400a
Breadboard binary I/O: LEDs out, DIP switches in. Also DC voltages.
the CPU UP display and Motorola custom ROM
Power transformer

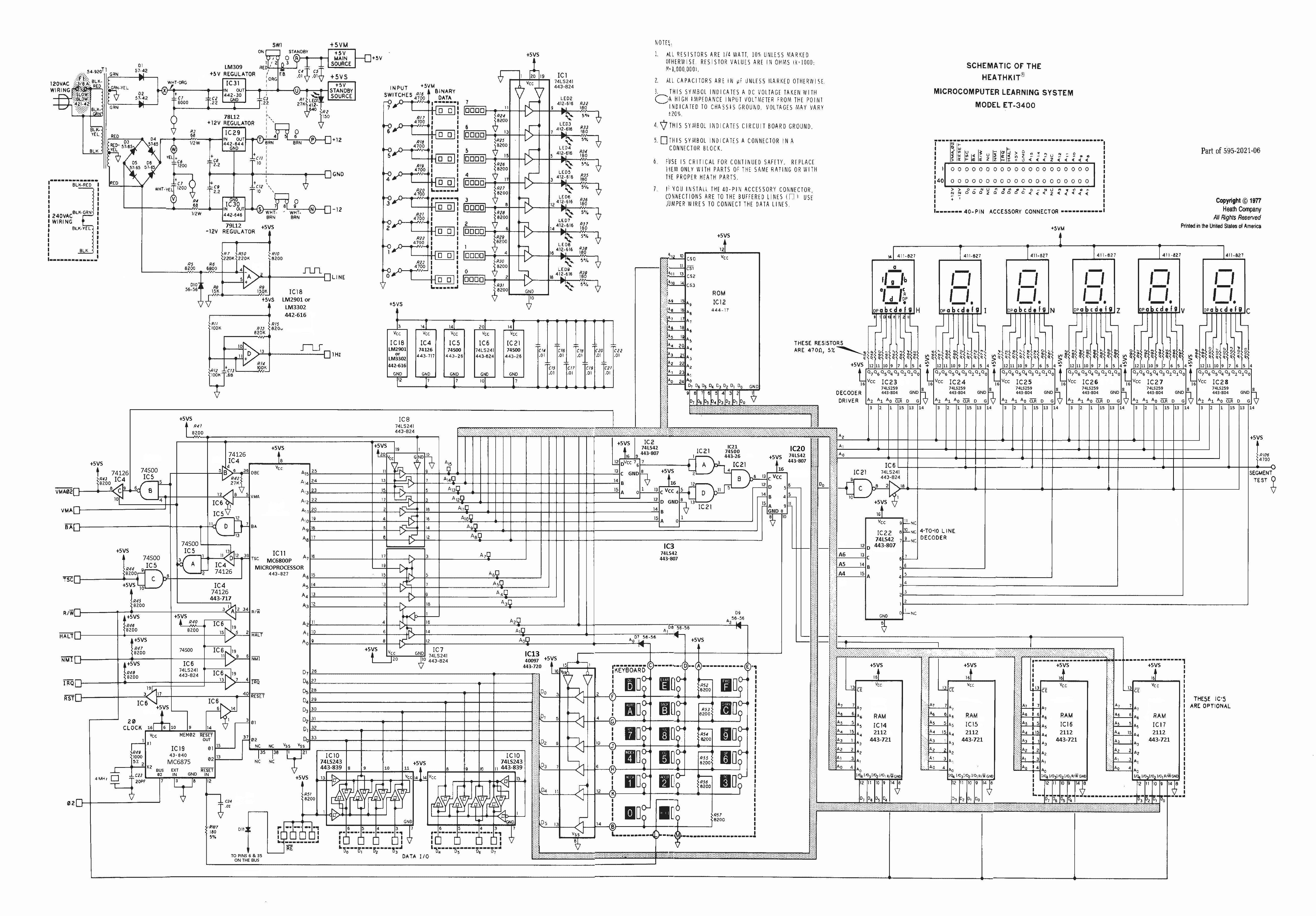
ET3400 schematic, single page (see below)
I have a B/W pasteup of the ET3400 X-ray view, ask me for it. A color rendering would be better, if you can color-scan an original.

Here's two ROM images. One, a hex dump, is from Dave Dunfield's site for his ET3400 emulator. The other, a binary dump matches other binaries such as from this github emulator site

I'd also like the 3400A schematic and 3400A X-ray view, same deal. I don't think these are on the Web, not sure if Heath/Zenith issued a manual.

Lee Hart's ET3400

On 2/8/2024 6:04 PM, Lee Hart wrote in Feb 2024:

While hunting around on ebay, I stumbled across a Heathkit ET-3400 trainer for the 6800 at a good price, about $100 with shipping. So I bought it. It arrived yesterday. Not working, no manual, rather dirty but in reasonable condition. So far, I found 3 ICs with pins rotted off. Replacing them still didn't make it work, but now it has a clock and reset signals, the displays light, the address and data buses are all cycling, and the input/output logic is working. But the keyboard is ignored, so it doesn't seem to be running its ROM program. I ordered a manual on ebay. More later, once it arrives."

I Herb replied: "The ROM is unique, a Motorola part. The schematic and docs will tell you so. Not sure what it takes to replace, I imagine you can cobble up an EPROM like a 2716 or 2732 5V replacement."

Hart, Feb 9th: Yes, one of the groups.io posts was on replacing the custom ROM with a 2716. There are also posts on expanding the memory, and using a larger EPROM with Tiny BASIC. I have to make an adapter, but code for the ROM is online (and in the manual). My 3400 appears to be modified to run at 1 MHz. It has a 4 MHz crystal on the MC6875 (clock driver), and the 6800 clock is 1 MHz. hart Feb 10: The manual arrived today. It's a reproduction, though they did a nice job. It's spiral-bound, with an appropriate Heath-colored cover. The pictorials are neatly copied onto 8.5" x 11" pages without illustrations being split between pages. However, that's NOT true for the schematic! It was split between pages, and the areas where the spiral punches are has lost material! - Hart

I told Lee, I "found" this ET3400 schematic tonight. Actually, I edited better images of the schematic and pasted them together. It might print well on 11 X 17 inch paper.

Lee, Feb 12: Being a JPG, I can also edit it to add notes and fix errors as I find them. For example, I'll add generic part numbers (74LS42 vs 443-807) and missing connections (i.e. U6 does not show where pin 1 goes; it is the Enable input of a 74LS241 tri-state buffer).

Heath schematics often have these little quirks and errors. Engineers who worked for Heath complained on the SEBHC list that the Publishing Dept. insisted on re-drawing their schematics, and didn't let them proofread it before publication.

Did you also happen to have the "X-Ray View"? This was a view of the PCB that Heath provided with black for bottom foil, and red for top foil? This would help me figure out where the missing pins on the schematic *really* go. The copied manual (an on-line sources) of course print this in B/W, making it completely useless.

Testing... I have a bad feeling the ROM is bad. All the address, data, and control signals are moving as indicated in Heath's troubleshooting guide. The 6800 appears to be executing "program" but it's incorrect. I've replaced the 6800 and RAM without fixing the problem. The groups.io site has files for the ROM. The next step may be to make an adapter so I can replace it with a 2716. The site also has data to build the Heath ETA-3400 expansion accessory. It replaces the RAM and ROM on the main board with a bytewide RAM and standard EPROM. - Lee Hart

In April 2024, Lee added: "I did some editing on the schematic to add IC numbers, fix unreadable pin #s, and clean up some of the "jaggies"; but it's a long way from perfect. [Here's] what I've done so far. But I haven't found a color X-ray view of PC the board. The B/W version is useless, as you can't follow the red (top) traces."

"My ET-3400 still doesn't work, but it's getting close. It had a bad ROM, but Joe Slavik sent me a replacement. The other problems so far have all been bad sockets and corroded IC pins." - Lee Hart

Links to related content

there's lots of stuff around the Web about these. Some upgrades for more ROM and RAM, also upgrade to a 6809 or more ROM/RAM, as little daughter boards.

A68 cross assembler, ROM monitors.

Dave Dunfielf, Several manuals.

Apparent archive of ROMs and some programs? Kansas City Standard (KCS) software?

- groups.io discussion. A burst of interest since Dec 2023.

Bill Degnan's vintage computer Web site, an old buddy of mine

Somebody re-produces the ETA-3400 that adds memory and cassette and stuff. Has a YouTube video. Others have done similar modern upgrades.


Herb Johnson
New Jersey, USA
to email me @
follow this ordering link

Copyright © 2024 Herb Johnson